BERNAY HABITAT
|
|
Accueil > Chauffage > Cuisinières à bois > Toutes les cuisinières à bois > Cuisinière à bois DeManincor Rustica FP100 5.5kW
DeManincorDeManincor

Cuisinière à bois DeManincor Rustica FP100 5.5kW

Prix : Nous consulter
Réf. : FP100

Disponible avec
- céramiques de série 100x100 mm
- enduit taloché blanc

Ce produit est conforme à la norme EcoDesign 2022
Pystème ECOPLUS® pour une combustion complète et propre
Plaque de cuisson en fonte radiante de grosse épaisseur
Foyer et bouche de charge de grande dimension pour bûches jusqu'à 40 cm de longueur
Chambre de combustion et parcours des fumées en briques réfractaires
Grand four en inox avec lumière et thermomètre
Cuissons uniformes et hautes températures
Grille foyère réglable en hauteur
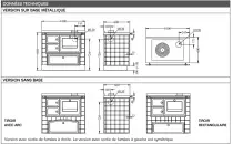
Sortie de fumée dessus, à droite ou à gauche, sur demande arrière ou sur le côté
Réalisable sur mesure de 100 à 110 cm
Version à encastrer avec côtés aérés par convection naturelle
Porte du foyer avec grande vitre panoramique sur demande
Puissance calorifique nominale: 5.5 kW
Rendement: 85 %
Puissance maximale: 7.5 kW
Poussières à 13% d’oxigène: 29.4 mg/Nm3
Co à 13 % O2: 0.10 %
Prise d’air de l’extérieur: ø 80 mm
Dépression à la cheminée: 0.12 mbar
Poids net/avec emballage: 230/245 kg

ÉQUIPEMENTS STANDARDS
- plaque en fonte 730x470 mm avec cercle
- four mm 350x420xh230, porte avec vitre
- lumière four et thermomètre
- portes et boutons de la série Arte
- main courante avant
- sortie de fumées supérieure à droite ou à gauche ø 130 mm
- table inox de 40 mm (h totale 860 mm)
- version visible avec finition sur trois côtés, table sans fentes
- tiroir en bois avec arc

SUR DEMANDE
- sortie de fumées arrière ou lateral, à droite ou à gauche ø 130 mm
- tiroir en bois rectangulaire
- sans tiroir avec arc
- porte du foyer visibile
- version encastrable avec finition seulement avant, côtés inox aérés et table avec fentes

OPTIONS
- mail courante 2 ou 3 cotés, disque chauffant “haute rendement“,couvre-plaque

Garantie 2 ans

Disponibilité
Sélectionnez un article pour voir la disponibilité de l’article
*Livraison par transporteur offerte en France Métropolitaine (hors Corse)
Vendu par :
Quantité minimum :
Ajouter au panier
Ajouter au panier
Ajouter au panier
Ajouter au panier
Cet achat vous fera bénéficier de Point(s)
Simulez vos mensualités

Caractéristiques

  • Cuisinière
  • Puissance (KW) 5.5
  • Diamètre de buse (mm) 130
  • Taille de bûches (cm) 25
  • Départ fumées arrière ou dessus
  • Dimensions l x h x p (cm) 100 x 86 x 60
  • Dimensions four l x h x p (cm) 35 x 23 x 42
  • Garantie 2 ans

Même marque

Enlèvement à notre dépôt ou livraison

France métropolitaine

Paiement sécurisé

Mastercard, Visa, American Express, Virement bancaire, Chèque, 3xCB sans frais

Où et qui sommes-nous ?

129 rue du général Maurice Bourgeois,
zone du Parc Expo, 27300 BERNAY

du lundi au vendredi 10h - 18h

Contactez-nous !

Contact et SAV
Appel téléphonique non surtaxé